




霍夫曼窯 - 維基百科,自由的百科全書 https://bit.ly/3SeOBvY
Hoffman Kiln - صنعت آجر - Brick Kiln - Brick Firing https://bit.ly/3l0Ckz6
霍夫曼窯是一種用於陶瓷工業各個分支的窯爐。該窯於1856年由同名人發明,目前用於製磚、粘土、陶器和耐火材料工業。該窯屬於連續窯類。在這個窯中,產品是固定的,火是活動的。
霍夫曼窯是一條長長的隧道,呈環形或橢圓形,將其分成多個腔室。霍夫曼窯爐室通過鑲嵌在爐室分隔壁中的通道或門連接。每個房間還有一個出口門,用於裝卸窯爐。霍夫曼窯的大小由這些門表示;例如,34門窯就是有34個窯室的窯爐,每扇門都與一個製磚室(或其他產品)相連。噴油器所在的地方也在屋頂上。
如何在霍夫曼窯中烘烤產品
在霍夫曼窯中,產品由其他腔室的熱量加熱。在直接用火煮熟之前。這稱為預熱。這些熱量與燃燒室排出的廢氣一起通過嵌入式閥門進入下一個房間,並預熱其中的產品。在一個房間裡,烘焙操作正在進行,在對面的房間(最遠的房間),卸載和加載操作正在進行。這是通過使用將腔室保持在烤箱外的門來完成的。在裝載過程中,冷空氣也進入窯內,被燒成室中的火吸入,並通過室間的通風孔行進。因此,空氣從已經進行烘烤過程的房間中移出,並冷卻成品熱產品。
因此,在霍夫曼窯環中有兩個氣流。第一,空氣從第一個半圓的燃燒室流出,預熱下一個燃燒室。2、空氣從半圓形外側流入,進入冷卻前幾個房間的燃燒室。
當射擊室中的射擊操作完成時,在霍夫曼環的對面房間中,裝載操作完成並關閉門。此時,燃燒器從屋頂轉移到下一個燃燒室屋頂。並打開本室(成品燒成室)的前門進行再次裝卸。
霍夫曼窯的類型
霍夫曼窯有幾種不同的類型:
環窯
之字形臨床
博克斯窯
哈里森窯
但通常,環窯被稱為霍夫曼窯。


八卦窯入窯疊濕胚磚,並貼以報紙隔間
八卦窯
『八卦窯』,它的名稱的由來,是因為窯的屋頂,二邊弧形窯壁各修飾為三個斜坡面所組成;加上二邊的斜坡面,共為八角形,因此稱為『八卦窯』。八卦窯內可一邊燒窯、一邊隔間、一邊放入土坯,同時可一邊出貨,一年四季可不斷入貨生土坯(即泥土塊,半成品)一邊燒、一方面出貨為最大特色。
八卦窯的主體完整材質堅硬,左右各有八個窯洞加上前後各一個,總共有十八個窯洞,窯身圓形頂上再收邊成八角形,所以稱之為八卦窯,窯洞是半圓形的拱圈約半人高,旁邊有座像是辦公室的兩層樓建築,加上非常非常高的煙囪,滿古樸的。
事實上台灣人所謂的『八卦窯』是德國人於1865年發明的, 音譯過來名稱為霍夫曼窯, 在大陸地區, 相對於傳統的間歇窯稱為『輪窯』,所以『八卦窯』這個名稱是本土化的結果, 推測起來, 大致緣由為台灣人也受陰陽五行太極之學深遠的影響; 另外八卦窯的輪燒方式所採取半自動化的隔間窯室輪燒方式生產紅磚、造成的生坯; 紅磚於兩端窯室輪轉, 其運作過程, 事實上也與八卦無異, 所以窯形是否為正八卦形? 就不是重要的關鍵所在了!
台灣首座八卦窯「中都唐榮磚窯廠」是全國唯一一處保存完整的磚窯廠,從建場設立之今,已有近百年的歷史,前身為1899年日人鮫島盛所興建之鮫島煉瓦工廠,1913年有「台灣煉瓦王」之稱的日本大企業家-後宮信太郎將其整合為「台灣煉瓦株式會社打狗工場」,並擴充規模增建新式的六座八卦窯,為日治時期南台灣重要建築物。
2004年3月內政部古蹟審議委員會審議通過公告為國定古蹟。目前「中都唐榮磚窯廠」是高雄唯一位於愛河中游段的國定古蹟,亦是全國第一座八卦窯的磚窯廠,在台灣經濟起飛的五、六O年代,曾創造了甚高的利潤,停工生產後,作為見證高雄都市及工業發展的歷史,也記錄了高雄中都地區居民共同的記憶,極具歷史文化價值。
隨著時代進步,過去磚窯業的風光不在,就連製作磚窯特有的八卦窯也所剩無幾。八卦山紅土壤土質適合製作磚瓦,位於山麓附近的花壇鄉,也因此成了臺灣磚窯生產重鎮,生產的磚瓦,不但供應全省,還可供外銷,全盛期曾經是花壇最重要的地方產業。花壇磚窯業歷史悠久,迄今已有八十年歷史,過去磚窯業燒磚瓦都以長形「八卦窯」製作,然而在時代進步下,以往樸實的八卦窯已被自動窯所取代。
根據磚窯業者說法,花壇磚窯業最早使用土窯燒磚,為了擴充產能,從土窯改進成串窯、圓窯,民國五十年代完成的八卦窯更讓磚瓦產能大增,為花壇磚窯業再創產業高峰,貢獻頗巨,然而近年來,不但磚窯業逐漸式微,八卦窯也逐漸被自動窯所取代。
八卦窯的優點是節省能源,只用煤炭,不必任何電力或汽油,其構造是一圓形隧道,共分三段,第一段是燃煤燒製,第二段是排列成排的磚坯準備燒製,第三段即是燒好的磚塊。
如今,八卦窯雖已停產,惟特殊之隋圓型老舊磚造窯體,成為鄉土歷史瑰寶。
https://nrch.culture.tw/twpedia.aspx?id=6202 https://bit.ly/3Ywll6a
Hoffmann's Kiln and Bull's trench kiln - Civil Engineers PK https://bit.ly/3Jqn2Nm
這是一個連續的窯爐,有一個永久性的屋頂,因此即使在下雨時它也能運轉。最初的霍夫曼窯爐是一個巨大的圓形環形窯爐,中間有巨大的牆壁和一個大煙囪,地下徑向煙道從 12 個窯爐的內壁匯聚到煙囪。房間是桶形拱形的(像鐵路隧道),在屋頂拱形中有幾個小的進料孔,細煤可以通過這些孔
進入磚塊之間的空間進行燃燒。在外牆或窯爐周圍有十二個開口,用於裝卸各個燒製室。這些腔室由非常大的金屬阻尼器彼此隔開,當火在窯爐中從一個腔室移動到另一個腔室時,這些阻尼器可以升高和降低。
隨著窯爐全面運行,兩個腔室將打開,另外十個腔室在門口和互連的鋼阻尼器處被密封。如果腔室編號為 1 到 12,則磚塊從 2 卸載並裝入 1。阻尼器在 1 和 12 之間關閉,但在所有其他腔室之間打開。空氣通過 2 的敞開門吸入,並通過 3、4、5 和 6 中的磚塊,冷卻它們並同時加熱自身。
燃燒室 7 正在燃燒,燃料每隔一段時間從屋頂送入,立即被來自 6 的熱空氣點燃。燃燒產物傳遞到 8、9、10 和 11,乾燥和預熱磚塊這些腔室 正在裝載和卸載的腔室依次向前移動,通過這種方式從冷卻磚和熱燃燒氣體中提取熱量。霍夫曼窯和布爾溝窯
布爾的溝窯
窯爐可製成圓形或橢圓形。它建在旱地上,挖溝,寬6-9米,深2-2.5米,長100-150米。另一種方法是用磚砌築窯爐的側面,尤其是在排水有問題的地方。外壁留有縫隙,便於砌磚和出磚時進入溝槽。待燒青磚成排擺放,寬二至三塊磚,中間留有孔洞,便於進煤和充分流動空氣通過設置(圖 2)。在磚的頂部,覆蓋著灰或磚灰的兩層磚密封了環境。將一大塊帆布、紙或金屬板垂直放置在磚塊設置上,以阻止空氣從煙囪的錯誤一側進入(圖 3)。溝槽包含 200 – 300, 6-10 米高的煙囪,由金屬板製成,放置在磚砌結構的頂部。隨著射擊的進行,它們會四處移動,而且它們必須很輕,以便射擊人員可以攜帶它們。附在鋼製煙囪頂部的電線支撐著它們。對輕便的需求和更換煙囪的成本通常會導致煙囪的高度變得太低。這意味著排氣溫度必須更高以保持足夠的通風,並且煙囪放置在靠近燃燒區的位置。因此,可以再利用較少的廢氣熱量。小型圓形 Bull 溝窯僅使用一個煙囪,而較大的橢圓窯則需要兩個煙囪。
Bull 的溝窯中的燒製是連續的,白天和黑夜。一直裝青磚,一直抽成品磚。燃料節省是通過重複使用間歇式窯爐中損失的部分能量來實現的。用於燃燒的空氣通過已經燃燒但仍然熱的磚塊吸入。冷卻磚將熱量傳遞給助燃空氣,在進入燃燒區之前對其進行預熱。燃燒後,熱廢氣在前往煙囪的途中穿過尚未燒製的磚塊。這會預熱磚塊,因此將磚塊加熱到最高溫度所需的燃料更少。每 24 小時一次,煙囪向前移動 5 至 7 m。日產量為 15 – 25,000 塊磚。
磚的製造
1.磚土的製備
準備磚土涉及以下步驟。
A。挖掘
如果要採集土壤的區域是草地或有其他植被,則將頂層(約 20 厘米深)挖出並扔掉,因為它含有植被根和其他有機物質。挖出的土塊破碎了。確保土壤不含礫石、粗沙、石灰和 kankar 顆粒、植物物質等。
b. 風化
挖出的土塊在破碎後與少量水混合,然後堆成一堆以風化一段時間,從幾周到可以放置的時間不等。這提高了它的塑性和強度。為了保持土壤濕潤,可不時向堆上噴水並翻動堆。
C。混合
然後將泥土徹底破碎並在需要時與沙土混合。將整個團塊徹底混合併根據需要添加適量的水。
d. 回火磚的製造
在加入所需量的水後,將混合土揉在人或牛的腳下。整個質量變得均勻且具有塑性。然後用墊子蓋上,讓其逐漸乾燥,層層約 30 厘米厚,時間不少於 36 小時,直到它剛好可以成型為止,攪拌機用於製造磚塊所需的回火土。規模或用於高級工程,如拱門等。
磚的製造
e. 模具磚的製造
模具是長方形的木頭或鋼製盒子,沒有頂底,較長的邊伸出幾厘米作為把手。木製模具的邊緣應該用擰在上面的黃銅或鋼條保護。鋼模保持其形狀,比木模更耐用,用於重型工程。模具的內部尺寸保持比燒磚的尺寸稍大(通常約為磚尺寸的 1/10)。這樣做是為了讓成型磚在乾燥和燃燒時收縮。可以通過現場試驗確定收縮的確切餘量。
磚的成型
將準備好的磚土賦予所需的形狀稱為磚成型。有兩種不同的成型方式。
a) 手工成型
b) 機器成型。
A。手工成型:
磚的手工成型被廣泛使用,可以在地上或桌子上完成。
b. 地面造型:
當有大面積平坦的土地可供使用時,採用這種方法。將要進行造型的土地區域平整,抹灰光滑並撒上沙子。磚的成型
為防止成型磚粘在模具上,可以在模具內側撒沙子,也可以在每次成型前將模具浸入水中。當使用沙子來防止泥土粘在模具上時,成型的磚被稱為砂模,如果每次在成型磚之前將模具浸入水中,則磚被稱為泥塑磚。砂模磚具有更好的光潔度和更鋒利的邊緣。
在模具內部撒上沙子或將模具浸入水中後,取一塊準備好的泥土,其體積比磚塊大一點。這個塊在手上的形狀與磚塊的大小和形狀一致。
現在它在沙子裡滾動,然後猛地把它扔進模具裡,這樣模具就完全被泥土填滿了。然後,模塑者用拳頭擊打,並用拇指按壓角落和邊緣
然後刮掉多餘的土壤,平整頂面。帶有鋒利邊緣的金屬板,稱為打擊板,用於去除多餘的土壤。通常,在框架上拉伸的細線用於此目的。
v. 磚成型後,用堅硬的東西敲擊模具,然後提起模具,讓磚在地上乾燥。將模具放在附近以塑造另一塊磚並重複該過程。
直接在地面上模製的磚,其下表面粗糙,不能有青蛙。為避免這種情況,將磚塊模製在稱為模塑塊的木塊上,凸出物厚度為 0.5 厘米。一個模塑工每天可以模塑 500 到 1000 塊磚。
C。表成型:
在其中,模塑工在桌子上進行磚的模塑。他站在桌子旁邊這樣做。他在稱為股票板的板上模製磚塊。砧板與模具大小相同,並有青蛙的突出部分。沙子灑在模具內部和砧板上。放置模具以適合砧板,然後填充泥土。將足量的泥土倒入用力壓緊的模具中,用錘子或細金屬絲去除多餘的泥土。然後將托盤放在模具上。然後將包含磚塊的模具巧妙地從砧板上抬起並倒置,以便整體放置在托盤上。然後輕輕敲擊模具並提起模具,將磚塊留在托盤上。另一個托盤放在磚上,它被運到兩個托盤之間的干燥地點。
d. 機器成型:
有多種成型機,這些機器能夠快速製造大量磚塊。機器成型的磚具有更好/鋒利的邊緣/光滑的表面,比手工成型的磚更堅固等。
------------
磚的干燥
在燃燒之前,磚必須已經乾燥並且變得足夠堅硬,可以在窯中處理和堆放而不會損壞。此外,如果磚塊沒有完全乾燥,那麼它們在窯中燃燒時很可能會破裂和變形。
請注意以下幾點,以確保成功完成乾燥操作。磚的干燥
我。一旦模製磚變得足夠乾燥以至於它們在處理時不會損壞,就應該將它們翻轉並放置一兩天以上以進一步硬化。在乾燥的初始階段,磚應避免陽光直射和風吹,否則磚的快速乾燥可能會導致其產生裂縫。
二. 然後,它們應該以這樣一種方式堆疊,即每塊磚都能在其周圍的所有板材上充分流通空氣。最好的堆疊形式是寬度等於兩塊縱向放置的磚塊,它們之間有間隔。交替層沿著並穿過堆棧並且全部放置在邊緣上。
三. 晾曬的地方要高於周圍,以免偶爾下雨被淹。宜有緩坡,便於雨水排放。
四. 晾曬處應舖一層沙子,以便在潮濕天氣保持乾燥。
v. 為保護乾燥,應提供臨時竹架和 sirki 以防止磚塊因偶爾下雨而損壞。sirkis 應該用厚木板壓住,以防止它們被風吹走。堆疊的高度可以是八到十層磚。 相鄰堆垛之間應留有1m左右的間隙,以方便工人自由活動。
所有堆疊的長度和高度應保持相同。每堆磚塊的數量應為千的倍數。這將使計算磚塊的數量變得容易。根據天氣情況,磚塊完全乾燥需要三到八天。
燒磚
燒磚是在夾具或窯爐中完成的。夾具是一種臨時結構,而窯是永久性結構。
在 Clamp 或 Pazawah 中燃燒:燒磚
典型的夾具如圖所示。磚塊和燃料交替放置。頂層的燃料量逐漸減少。每個磚層由 4-5 層磚組成。磚塊之間留有一些空間,供熱氣自由流通。夾具裝載30%後,最下層的燃料開始燃燒,剩餘的磚塊和燃料的裝載匆忙進行。夾子的頂部和側面都塗滿了泥漿。然後塗上一層牛糞,以防止熱量散失。磚的產量為 2-3 塊,整個過程在六個月內完成。這個過程產生大約 60% 的一級磚。
窯燒
間歇窯:燒磚
這種地上矩形窯的例子如圖所示。裝窯後,進行燒製、冷卻和卸料,然後進行下一次裝料。由於牆壁和側面在重新裝填期間會冷卻,並且在下次發射時會再次加熱,因此會浪費燃料。
連續窯:
連續窯的例子有霍夫曼窯和布爾溝窯。在連續窯中,磚堆放在不同的腔室中,同時對磚進行不同的處理。當其中一個腔室中的磚塊被燒製時,下一組腔室中的磚塊被乾燥和預熱,而另一組腔室中的磚塊被裝載並在最後一組腔室中被冷卻。
Hoffmann's Kiln and Bull's trench kiln - Civil Engineers PK https://bit.ly/3Jqn2Nm





















混合霍夫曼窯 https://bit.ly/3Yx9gNu
霍夫曼窯是一系列間歇工藝窯。霍夫曼窯是生產磚塊和其他一些陶瓷產品最常用的窯爐。1858年由德國人弗里德里希·霍夫曼獲得製磚專利,後用於燒石灰,被 稱為霍夫曼連續窯。最初的霍夫曼窯爐是一個巨大的圓形環形窯爐,中間有巨大的牆壁和一個大煙囪,地下徑向煙道從 12 個窯爐的內壁匯聚到煙囪。桶形拱形燃燒室(類似於鐵路隧道)在屋頂拱門上有幾個小進料孔,通過這些孔可以將細煤送入待燒製的磚塊之間的空間。
霍夫曼窯是一系列間歇工藝窯。霍夫曼窯是生產磚塊和其他一些陶瓷產品最常用的窯爐。1858年由德國人弗里德里希·霍夫曼獲得製磚專利,後用於燒石灰,被 稱為霍夫曼連續窯。
霍夫曼窯
最初的霍夫曼窯爐是一個巨大的圓形環形窯爐,中間有巨大的牆壁和一個大煙囪,地下徑向煙道從 12 個窯爐的內壁匯聚到煙囪。桶形拱形燃燒室(類似於鐵路隧道)在屋頂拱門上有幾個小進料孔,通過這些孔可以將細煤送入待燒製的磚塊之間的空間。
在外牆或窯爐周圍有十二個開口,用於裝卸各個燒製室。這些腔室由非常大的金屬阻尼器彼此隔開,當火在窯爐中從一個腔室移動到另一個腔室時,這些阻尼器可以升高和降低。
一旦窯被點燃,它就可以熄滅,操作順序是連續的。每隔一段時間,射擊區向前移動,並且對燃燒室之間和煙囪中的阻尼器進行相應的改變。
裝載和卸載的腔室依次向前移動,通過這種方式從冷卻磚和熱燃燒氣體中提取熱量。當火在窯爐周圍傳遞時,實際燒製區前面的腔室逐漸變暖,後面的腔室慢慢冷卻。
混合式霍夫曼窯
原來的圓形霍夫曼窯不再使用,取而代之的是更現代的版本,它採用並排建造的兩條平行隧道的形式,兩端由彎曲的隧道連接。通過這樣的佈置,煙囪建在窯結構之外並且可以連接到多個窯。十六個腔室是有效工作的最低限度;二十二個房間是最好的。雖然燃燒時間只有大約三天,但磚塊在窯內放置了大約十天,以便提高溫度,然後在燃燒後降低溫度,然後再取出窯爐。
原來的霍夫曼被取代,因為它具有如此大的吸熱質量,並且錐形燃燒室很小且裝載起來不必要地複雜,而燃燒室之間的非常大的阻尼器操作起來既麻煩又笨拙。這個阻尼器被裝載時在射擊通道的部分之間粘貼紙或織物屏幕所取代。為了增加產量,建造了具有更長迴路的連續窯,通過這些迴路,燒製區行進得更快。在較大的窯爐上可以同時運行兩個燒製區。為了節省空間,點火電路被彎曲成鋸齒形。還使用了其他設計,其中電路以 T、Y 或 X 的形式構建,煙囪位於中心。原則上,它們與霍夫曼窯沒有什麼不同,但火傳播率很高,
混合霍夫曼窯
混合霍夫曼窯
混合霍夫曼窯
混合霍夫曼窯
霍夫曼窯的優勢
•由於直接在磚中加火併 在燒製前使用廢熱乾燥和預熱生磚,因此它們非常省油。 在英國和中國,使用煤作為燃料的霍夫曼窯爐的效率數據從每公斤燒製磚的最高
1,800到最低 2,350 kJ 不等。
• 他們有能力均勻地燒製大量磚塊,並且浪費最少。
• 使用向下或交叉通風系統,燃料在磚之間定期燃燒,可 在整個窯爐中提供均勻的燃燒。
• 可以通過使用阻尼器和小心加火來控制點火。 可以成功使用多種生物質燃料,例如
鋸末和木材加工廢料、大米和咖啡殼。
這些燃料可以通過使用壓縮空氣或電力運行的機械化燃料裝料斗從窯頂添加。這在燃燒
比煤或焦炭等其他燃料具有更高質量和更低熱值的生物質燃料時是必要的。
霍夫曼窯的缺點
• 它們質量大,當燒製區向前移動通過冷窯時會吸收大量熱量。
窯和燒製磚中的一些餘熱被用於預熱空氣以進行燃燒,這一事實得到了補償。
• 它們的建造成本很高並且需要定期維護。 有些模型是大型複雜的結構,具有
非常複雜的煙道和阻尼器系統。
• 它們佔用大量空間;因此,它們通常在所有可用的粘土被提取後在粘土坑中建造,
以免佔用大面積的粘土儲量。
•直接加爐會影響爐孔正下方磚的質量。這些磚可能會被過度燒製並且
通常會變色。這可以通過在點火孔下方、沿側邊
和在點火室的中心設置點火溝槽來避免。這些溝槽包含燃燒的燃料並防止窯中的局部磚變質。
然而,安裝燒製溝槽意味著窯的容量會降低,以生產更多數量的均勻
燒製的磚塊。
混合霍夫曼窯 https://bit.ly/3Yx9gNu



Hoffman continuous kiln - Google 搜尋
Hoffman continuous kiln - Google 搜尋
Hoffman continuous kiln - Google 搜尋
Advantages and Disadvantages of Hoffmann kiln - Civil Engineering

霍夫曼窯的優勢
更高的效率;
燃油經濟性;
燒磚均勻;
熱量調節;
未燒磚的預熱;
好磚的比例更高;
形狀規律;
燃料燃燒時不冒煙。
霍夫曼窯的缺點
初始建設成本高。

What is a Hoffman kiln and how it works? – Civil Engineer
問題:什麼是霍夫曼窯爐及其工作原理? 答:一般為圓形,也可以為矩形。 它有8至24個房間,中間有一個斜坡。每個房間都有一個門口。 每個腔室的頂部都有帶蓋的孔,用於供給燃料。 它是四季皆宜的連續窯爐。 在此過程中,當腔室 1 裝載時,腔室 2 中的燒毀磚被卸載,腔室 3-6 中正在進行冷卻,腔室 7-8 中的燃料正在燃燒。 來自燃燒部分的熱氣體通過裝載在室 9-12 中的生磚,這有助於在燃燒前將它們乾燥。 它每天可以提供20000塊磚。 我的燃料成本很低。問:連續窯有哪些? 答:連續燒製磚塊的窯稱為連續窯,例如 Bull’s Trench 窯和 Hoffman 窯。

What is a Hoffman kiln and how it works? – Civil Engineer





















花壇八卦窯見證磚窯歷史,文化局將爭取補助打造磚窯文化館。(吳敏菁攝)花壇八卦窯 規劃打造磚窯文化園區 - 生活 - 中時 https://bit.ly/3T0on0C
花壇是紅磚的故鄉,產磚盛極一時,隨新建材興起沒落,花壇八卦窯見證了地方磚瓦一頁興衰,也是全台碩果僅存的霍夫曼窯,2011年登錄歷史建築,沒投入再利用,淹沒荒煙蔓草,還成了被堆置廢棄物的暗道,文化局發動清理,接著要辦理規劃設計,投入打造磚窯園區。
「好可惜!」八卦窯淹沒荒煙漫草,並成了廢棄物堆置場,地方人士莫不婉惜,指出花壇燒磚有百年歷史,最早是竹筒窯、目仔窯、圓窯,八卦窯是民國48年「87」水災催生,當時許多土埆厝被流走,紅磚供不應求,德式霍夫曼窯可大量連續生產,見證了歷史一頁。
地方指出,稱八卦窯是從外型取名,共22個圓拱門、每座拱門可燒1700至1800塊磚,隨著在新材興起,在80年代停止生產。
花壇八卦窯功成身退,卻隨著地方振興特色產業,被視為具時代意義和保存價值,但是6年前登入歷史建築後,又歷經幾度會勘,每次都是發動清理垃圾,然後又不了了之,沒有改變磚窯已成廢墟的命運。
「就是喜歡這歷史的氣味」磚窯廢墟吸引不少人前往取景拍照,但不禁被堆置大量垃圾嚇一跳,文化局文資科長林佳蓁表示,之前做過調查研究和修復概估,未來預計投入4000萬元,現階段將先辦理規劃設計,待細部計畫出爐,再爭取文化部補助修復,未來朝向結合磚窯產業,作為展覽館和DIY活動教室,打造磚窯文化園區。
花壇八卦窯 規劃打造磚窯文化園區 - 生活 - 中時 https://bit.ly/3T0on0C




连续霍夫曼窑煤燃烧系统 https://bit.ly/41VScnc





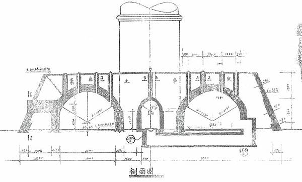
剖面與身體:在中國霍夫曼窯設計變遷背後可以發現什麼| 李海清| 時代建築2019年第6期_研究








剖面與身體:在中國霍夫曼窯設計變遷背後可以發現什麼| 李海清| 時代建築2019年第6期_研究
輪窯也稱為環窯,是在公元1858年由德國人富里多利、霍夫曼(Holfmann)所設計的一種連續式窯爐,因此也稱霍夫曼(Hoffman)窯,其外形為一橢圓型,其屋頂通常都做成八個角,與民間盛行之八卦圖形相似,因此在台灣也被稱為“八卦窯”;這種連續生產的焙燒設備,曾經是我國磚瓦工業生產中廣泛使用的一種窯型,農村地區仍大量使用。
簡介
輪窯結構
就一般情況而言,輪窯有一個連續的環形窯道,其直段部分為直窯段,半圓弧部分為彎窯段。窯道內沒有橫隔牆,在窯道外側牆隔一定距離設一個窯門,作為裝出磚坯或成品磚之用,兩個相鄰窯門間的對應區段.稱為一個窯室,或叫一個“門”,輪窯的規格就是以若干門數表示。燒一部火輪窯,一般為16-22門,兩部火一般為32-40門,三部火一般為54-60門。 每個窯室的長度(即門距)為5m左右,窯道內斷面尺寸一般為內高2.8m以下,內寬3-4m,沿整個窯道長度方向的兩條平行窯道之間設有總煙道,每個窯室側牆下部設有排煙孔(俗稱“哈風”),這種排煙孔設定於外側牆處,稱之為“外哈風”,設轉置於內牆處,稱之為內哈風:有的輪窯是兩種哈風兼有。有的輪窯就只設外哈風。在內、外哈風均設的輪窯中,由於結構上的特點和窯道內橫向里外溫度存在差異的原因,該種輪窯在彎窯段的窯室就僅設外哈風。
總煙道和排煙孔之間由地下支煙道相連通,支煙道與總煙道連線處設有鑄鐵錐形閘。總煙道上設煙囪或排煙風機,另外也有用地下煙道將總煙道延伸至窯外一側,再通向煙囪或排煙風機。
上述排煙孔、支煙道、總煙道和煙囪(或排煙風機)設施構成整個排煙系統。在輪窯焙燒過程中,燃料燃燒後的煙氣即經排煙孔、支煙道流入總煙道,再經煙囪或排煙風機排空。
工作系統
輪窯外牆總厚度1.5~2.5m,由兩層磚牆中間填乾粘土築成,內窯牆厚365-485mm,外斜牆厚為370mm,輪窯頂由窯拱、填土層和面層組成,總厚度約為1.0m,其中窯拱磚厚為365mm,上面即用乾粘土充填密實,面層用磚乾法鋪砌,窯拱和窯道內牆一般為普通建築磚,也有採用部分粘土質耐火磚砌築以提高砌體耐火等級和質量,延長窯的使用壽命
輪窯內產品焙燒是通過燃料在其磚垛內部燃燒方式實現的,故在窯頂設定投煤孔(俗稱“火眼”),燃料自投煤孔進入窯內,投煤孔沿窯道長度方向布置若干排,排距為750-1000mm,每排一般為4-5個,其橫向間距為800-100Dmm左右,每排邊部投煤孔與窯道側牆間距一般不大於400mm,投煤孔內淨空尺寸一般為120×120-150×150mm。
有些輪窯還設定有熱利用系統,用以抽取熱空氣和煙氣,供給人工乾燥室烘乾磚坯。熱利用系統包括抽取直接餘熱、間接換熱和高溫煙氣三部分,直接餘熱是窯外空氣進入
冷卻帶被加熱後變成的熱氣體,它直接從冷卻帶經投煤孔抽出;間接換熱是在窯拱的外表面鋪設換熱管道,通過管道內空氣與窯頂內部蓄熱之間的交換,將冷空氣加熱後抽出;高溫煙氣是直接抽取焙燒帶前部的低濕含量的高溫煙氣。
工作原理
正常焙燒的輪窯,可分成預熱帶、燒成帶,冷卻帶。製品碼入輪窯後不移動,而各帶隨著連續不斷地裝坯(碼窯),焙燒,出坯(出窯)作業,則沿著環形窯道移動,燃料自焙燒帶的投煤孔送入窯內後,在坯垛或空隙間進行燃燒,進而產生熱量加熱坯體。燃料燃燒所需空氣來自冷卻帶,即冷空氣由冷卻帶已打開的窯門進入,向焙燒帶方向流動,由於對流傳熱的作用,冷空氣被加熱成熱空氣,這部分熱空氣,除部分從冷卻帶的投煤孔溢出或當窯內設熱利用系統時,有一部分披抽送至於燥室外.其餘部分則進入焙燒帶供燃料燃燒用。燃料燃燒所生成的煙氣繼續向預熱帶方向移動,通過對流、傳導等熱交換,使預熱帶的坯體得到預熱而升溫,從而煙氣溫度則相應逐漸降低,最後經排煙系統排出窯外。為了能使預熱帶維持負壓,使煙氣能向前移動,在預熱帶一般開啟五個排煙錐形閘,以控制煙氣流量。裝坯時,每間窯室用“紙檔”把窯道整個斷面封嚴,當火焰向前移動一個窯室距離時,即應提起預熱帶始端紙擋前一個窯室的錐形閘,將其紙檔燒掉,同時將靠近焙燒帶的一個錐形閘關閉,從而各帶均前進一個窯室,配合裝坯、出坯的作業,使輪窯焙燒即可連續不斷地循環進行。輪窯按每個部火而言,各帶分布情況大致為:預熱帶 5-7門;焙燒帶 2-3門;冷卻帶4-5門}裝出坯窯3-4門。在正常生產中,雖然火焰不斷前移(火行速度一般為一晝夜20-40m),使各帶的位置也隨著相應前移,但各帶所占窯室數基本無大變化,處於相對穩定狀態。因此,在實際生產過程中,要求生產管理和操作保證各帶均衡,才能使輪窯得以始終正常運行,產品的產量和質量也才能有所保證。
輪窯的改進
輪窯是生產磚瓦的的一種古老的熱工設備。雖然它具有連續性生產,產量較高,可以採用各種燃料,建造費用低等優點,但與隧道窯,輥道窯等現代窯爐相比較,其機械化程度低,作業環境差,勞動強度高,這是因為傳統輪窯的結構使得製品機械化裝窯和出窯受到較大限制之故。近些年來,針對輪窯存在的問題和不足進行了研究和改進,其中敞開式輪窯(Opening Hoffman)就是一例。
窯敝開式輪窯是在原有傳統輪窯的基礎上,主要做了如下改進:
1、改環形窯道變成兩條平行的直形窯道; 、
2、 直形窯道兩端和中部加設升降式窯門;
3、在窯道靠近兩端窯門處,內牆各設“過火洞”,使兩條平行的窯道連通,以保持仍能連續焙燒;
4、為適應機械化裝卸製品,有利於窯內傳熱,採用吊平頂結構;
5、設定餘熱利用系統,將磚坯冷卻熱抽出,作為部分乾燥熱源;
6、投煤孔橫向排列採用不等距方式,以利窯內坯垛焙燒溫度均勻;
7、窯內製品的機械化裝卸,需配備專用叉車進行。專用叉車由適應不同規格製品的特殊叉具和普通叉車配套組成。
特點
優點
由於輪窯連續性作業,生產能力較大,而且產品焙燒過程中燃料燃燒所需的空氣絕大部分來自冷卻帶已被預熱過的熱空氣,而燃燒後的產物——煙氣通過預熱帶時,又可用來充分預熱磚坯,使其排煙溫度僅為100-120℃左右,因而燃料燃燒熱得以合理使用,使單位產品燃料消耗遠低於間歇式窯爐。
輪窯焙燒每萬塊標準磚(規格240 x115×53 mm)其煤耗包括內燃料和外投煤量,一般為0.8-1.0t標準煤(其發熱量QPH=2.93*1000kj/kg),而間隙式作業的土窯煤耗為輪窯煤耗的三倍,每萬塊標準磚需2.5-3.0 t標準煤。
輪窯所需配套的機械設備及鋼材用量都少,投資省,易上馬。在改革開放初期的中國廣大農村實施新的農業經濟政策時,不少地方籌建鄉鎮企業的小型磚瓦廠,絕大多數選擇輪窯這一窯型,與土窯相比,採用輪窯焙燒磚瓦製品,既符合節約能源的要求,也與早期農村鄉鎮企業的財力和技術管理水平相適應。
缺點
但是輪窯的結構和工藝作業水平,與隧道窯相比,產量小,自動化水平太低,操作條件差,勞動強度高,所以已逐漸被一次碼燒的隧道窯或輥道窯等更先進的窯爐所取代,經國務院批准,1999年1月國家經貿委國家經貿委令第6號發布了《淘汰落後生產能力、工藝和產品的目錄(第一批)》。
輪窯:輪窯也稱為環窯,是在公元1858年由德國人富里多利、霍夫曼(Hol -百科知識中文網 https://bit.ly/3yw72mF
-------------------------
八卦窯為德國人弗德列治‧霍夫曼〈Friedrich Hoffman〉在1865年發明,稱之為霍夫曼窯〈Hoffman Kilm〉或循環窯。明治維新以後傳至日本再傳到台灣。另一種說法是,「八卦窯」因窯頂排列為八卦形狀而得名,頂上排列八卦形,窯體成橢圓似八卦。
八卦窯是橢圓型連續性窯,與目仔窯相較,八卦窯為更早期之窯體,主要燒製建築用磚,以木炭為燃料。窯燃燒方式類似八卦循環,從窯頂撒進燃料〈煤〉,利用空氣對流產生動力提昇溫度,磚的燒製溫度在900-980°C,成胚的磚陸續送至窯室內燒製,等陸續冷卻後再搬運出來。
窯頂有鼎,鼎謂之風鼎,風鼎可分18口或20口的風口,鼎之風口若打開,風力由此吹入氣就旺,氣旺火就盛,溫度自然昇高,窯鼎亦有另一種小孔口,大小約二個磚頭左右,此口專為倒煤炭之用,謂之煤炭口。
八卦窯內可一邊燒窯、一邊隔間、一邊放入土坯,同時可一邊出貨,一年四季可不斷入貨生土坯(即泥土塊,半成品)一邊燒、一方面出貨為最大特色。八卦窯開始點火燃燒之後即持續不斷,遇有重大水災或過長雨季,無法製作磚胚或熄火才停窯。所以它的起火儀式是不常見的喔!
2.八卦窯的製作過程:起火、排窯、燒窯、出窯
(1)起火:起火儀式在八卦窯是很隆重的事。起火時,要準備全豬牲禮、鮮花、四果,舉行類似普渡的儀式。先將磚胚在八卦窯內堆疊約五間窯室,堆好、排好磚,就用磚塊、泥土將窯門封好。在窯室內先挖低約二呎深的洞,並挖引火道。將大量的土炭、木材投入洞內,並淋上油以助燃。點燃後隨時添加燃料,大約燒兩天,磚已燒紅。就可以從八卦窯洞口投煤炭,此後只需定時投煤炭進入洞內,就可經年累月得燒製磚瓦。
(2)排窯:排窯一般是五間室,且地面需預留其燃燒火道,此時每一窯室上都有五個投煤口,其下面排窯需留四方形通道,可使煤炭瞬間投下能立即燃燒。疊好磚坏後,用報紙將窯室從上到下封住隔開,可使燒得較快,有時趕燒磚,也可兩室兩室燒。
(3)燒窯:八卦窯燒磚的成功率,需要經驗老到的燒窯師傅。師傅需懂得磚塊成分,來判定燒窯溫度。從投煤口看其磚的火侯顏色,來調整風鼎控制溫度,並用工具測量磚燒實的尺寸。太熱,磚瓦會黏在一起,叫麻糬;一級品燒成比例低,都會被炒魷魚的。
(4)出窯:八卦窯是循環連續燒,邊稍、邊出窯。出窯時,室內溫度還是很高的,工人在搶窯時,需將麻布袋浸濕,披在身上,衝進去搬磚塊。拿出磚瓦後,再篩選等級
八卦窯 https://bit.ly/3xF5zKA
----------------------
花壇地區的瓦窯,在日據時期的大正年間,受到「市街改政」與「加強磚造房屋」的影響,而紛紛由原先的瓦窯改建成燒磚的竹筒窯。早期的竹筒窯,是依照燒瓦的「龜仔窯」的構想延伸,將窯體大約做20度的傾斜,並將近一半的窯體高度埋於地下,使得從側面的外觀看去,像一節埋一半在土裡的竹管,所以稱之竹管窯或竹筒窯。
竹筒窯在橋仔頭地區的使用時間不長,因為竹管窯的燒製方式不是非常理想,且其窯形為一寬約六、七尺,而深度約有七、八丈深的窯室,窯體的起火口建於較低的窯室前端,在較低兩側則建窯門供入坯與出磚,窯體由起火口向內逐漸以20度左右上升,方便火路的延伸,窯體外之兩側則以上埕方式將窯體埋去一半的高度,以便堆放薪柴,方便於在窯室左、右上方所設的燃料孔投送燃柴。這種燒磚窯室,很快的就被更為理想的目仔窯所取代。
日本人在大正年間,就已經將半自動輪燒方式的「霍夫曼窯」由歐洲引入台灣,而「台灣煉瓦株式會社」也在當時就引進霍夫曼窯到花壇地區設置。依據游清泉老先生的回憶,記得當時的日本人並沒有把這種較為先進的窯燒技術,轉移給當時的台灣業者,所以橋仔頭地區的窯業,積極的自尋改進,由竹管窯,改為一目一目(一室、一室),逐目上升,如同階梯的「目仔窯」。因為其造形如同階梯一樣,所以在燒窯及裝坯、出窯都如登階梯一樣,所以又稱為「登窯」或「階梯窯」。
目仔窯大都建築在山坡上,或在平地上將土地填成斜坡,再將窯體建於斜坡上。目仔窯的窯室是一間一間隔開獨立的窯室,其高度大約都在二公尺左右,而寬度與深度則要依場地的大小而定,而目數(窯室的間數)也依場地而增減,少則在十目左右,多則可達二十幾目。
最早的目仔窯,因為都靠人工作業,所以窯身兩側斜坡路面狹窄,而且窯室空間較小,到了後期的民國四十年到五十年間,紅磚的需求逐漸的增加,所以窯室的空間都不斷的加大,而且各家廠商所建的窯,尺寸也都不盡相同,為了裝坯、出窯、與運輸作業的方便,後期的目仔窯門,已經可以容納推車的進出,而兩旁的斜坡路,也可以容納牛車,甚至於卡車的行駛。
目仔窯的燃燒過程,是在一系列拾級而上的窯室最下方(最低的地方),闢有一間燃燒室,並且在每間窯室的左右拱形窯門旁都各留一個投煤口,做為每一個窯室的獨立後續燃燒,每個窯室也都在窯壁上方留一個小小的排氣口,使磚坯內含的水氣由此排出。在燃燒室下方左右各設有好幾個通火道,使每一間窯室的火氣都能相通,由最低處的燃燒室開始燃燒,讓火焰順著通火道一間一間的上升延漫到每一間窯室,再由司火的工人在每一間窯室的觀火窗來察看窯室內的火力狀況,適時由各窯室的投煤口補充煤料。而每一室的窯床底下設有共通的排煙道,應用熱上升的原理,在窯尾的最高坡上,築一支高約二、三十公尺的煙囪,把貫穿往每一間窯室底下排煙道裡的煙,藉著火焰的能量,推排到煙囪外,也藉由排氣的對流現象,由每一窯室的小氣孔中吸入氧氣來幫助燃燒。
在整個燒磚的過程中,每一窯室都設有閘門來控制火路及煙路。當燒製過程由低層的窯室一目一目的往上燒的過程中,就順勢一目一目的封窯,當串燒到最上面的一個窯室時,最先燃燒的窯室,也一間一間逐一順序的經過燒成後而漸漸冷卻了,接下來就可以逐一的開窯出磚。
這種半循環式的燒製過程,比起竹筒窯的整窯式燒製作業過程,已大大的提升了產量,所以目仔窯維持了一段很長的時間,廣為窯業界普遍的使用。但因目仔窯這種一目目、一室室,隔絕而成的窯壁吸熱面積太大,所以耗費燃料也相對的增加。磚窯業者漸漸發覺,如果能夠不要有那麼多的隔絕窯壁;又能連續循環燒窯作業;而且設窯的開發經費又不要像「霍夫曼窯」那麼龐大,那才符合設窯燒磚的經濟效益。所以就有業者積極想開發更新的窯形,來改善目仔窯高耗燃料的缺點。
為了改善目仔窯高耗燃料的缺點,於是地方的磚窯業者,遠從台南縣六甲鄉請來了師傅,到橋頭村來砌築較新型的文化窯,也就是俗稱的圓窯。圓窯不像目仔窯築在斜坡上,而是建築在平地上,其窯室做360°圓型的環繞,已經非常接近霍夫曼窯(八卦窯)的造型和功能。而圓窯與八卦窯最大的不同,就是燃燒的方式不同。因為圓窯的燒煤口是開在窯體的下方,繞著圓牆體的四週,在窯門與窯門之間;與八卦窯由窯頂開設投煤口的方式,迥然不同。而且圓窯的體積和佔地都比較小,所以建窯費用較低,適合一般租地取土燒磚的條件,因此業者都會以窯來遷就採土場地,就地在採土場設圓窯,以節省來回搬運土源的運輸開銷。這是圓窯比較佔優勢的地方。
因為有了圓窯的使用經驗之後,花壇地區的磚窯業者,為了更進一步能使用連續循環燒磚的方式,生產更多的紅磚來應付日益增加的紅磚需求,所以在使用圓窯的一、兩年後,都再度的投下高額的成本,改建成為八卦窯。也就是日本人由歐洲引進的「霍夫曼窯」。
在民國四十八年八月七日,中部的「八七水災」造成許多土埆厝的民房倒塴,所以在重建過程中,都改採磚造水泥的房屋,因此紅磚的生產量供不應求。因此磚窯業者,除了應用八卦窯的連續循環生產方式,日夜不斷的加班生產紅磚之外,也將早期使用許多人工的生產過程,逐步的一一引進國外較新的機械化製作生產模式,除了省卻許多人力之外,更能增加快速的產量。
尤其在八卦窯時期很多從採土到燒磚的流程,已經有了很大的革命性改變。從早期的人工取土,漸漸的轉入了使用鏟土機鏟土的方式,不再用人工一鋤一畚箕挑土的古老方法,而是用鏟土機將黏土直接鏟倒在由六氣缸引擎改裝的併裝車上,而且併裝車的牽引力、載重量,遠超過早期牛車搬運量的十四、五倍,所以在運輸的轉變過程,已向前跨越了一大步。
在黏土採集回廠後的混合攪拌、發酵過程,也不再依靠人力和牛隻,而是採用機械攪拌機,做充分的均勻混合攪拌之後,透過螺旋式的擠壓機械,將黏土擠壓成四吋厚、八吋寬(尺寸可以從擠壓機調整)的長條狀黏土條之後,再利用細鋼線切成每塊二吋或其他尺寸的磚坯。這種機械化的製磚方式,加快了以往用「磚仔斗」,一塊一塊印製磚坯的低產能生產方式,不僅省去很多人力,也使得磚坯的混合組織成分更為均勻,磚坯尺寸大小也不再因以往人工印製脫模過程中用力不均而產生變形。
磚坯在送入沒有隔間窯壁的空曠窯室時,八卦窯內負責排疊生坯的師傅,會依照八卦窯頂所留的投煤孔,疊排出「火路」,以便在投煤的燒製過程中,不僅火勢均勻,而且不致於將煤炭落積在磚疊上,造成品質的不均、不良。因為八卦窯外環窯牆每隔兩丈左右就設有一窯門,所以窯內的生坯每堆疊到一個階段,就以牛皮紙黏貼在磚坯上,做為隔間,以隔阻前一窯室的熱氣穿透,而影響下一間(階段)窯室的生坯堆疊。
由於八卦窯是橢圓造型的循環窯,所以採用前面繼續堆疊生坯,而後面繼續燒磚、烘磚,一路前進的「火追磚」方式,所以在燒製過程中,可以循環不斷、週而復始的連續燒製。因此,八卦窯在橋仔頭地區,從民國五十三年開始曾經使用了長達二十幾年的歷史。雖然在民國六十年之後,就有隧道窯在花壇鄉的橋頭地區建窯,但八卦窯仍然受到窯業的繼續使用。
在七○年代,台灣經濟成長快速,十大建設等國家巨大工程陸續的開發,使得台灣的商業、經濟日趨發達,將台灣從開發中的國家,帶入了已開發國家的經濟大國。在各大工程的建設過程中,也帶動了花壇磚窯業的蓬勃發展,使得彰化縣的窯業,如同雨後春筍般的蓬勃發展起來。磚窯廠的分佈由原來只局限在盛產黏土地區的花壇鄉,擴展到大村鄉、員林鎮,甚至於彰化、秀水、福興、埔鹽、大城、芳苑、北斗、線西…等鄉鎮市,都設有磚瓦窯廠。在彰化縣磚瓦商業同業公會所提供的資料,經過整理統計之後,可以知道彰化縣的磚瓦窯業最鼎盛的時期,應在民國六十三年到民國七十一年之間,窯廠的總數多維持在六十幾家,尤其在民國六十九年,曾經高達六十六家之多,分佈在全縣的十個鄉鎮市內,這是彰化窯業的全盛時期。
彰化花壇地區的土質由於適合燒磚,燒製出來的紅磚,品質優良,廣受各地客戶的喜愛。在民國六十年時,八卦窯日夜加工生產的紅磚,已無法滿足市場的大量需求,所以磚窯業者,又再度的投資,引進了新穎而生產快速的隧道窯。將八卦窯改建成隧道窯除了提升製磚技術之外,並將原來的機械式作業,改為自動化的操作,減少人力,增加產能,使得花壇的紅磚製作技術,又向前跨進了一大步。
隧道窯的燒磚方法和窯型,一改以往的傳統方式,窯形改為方正的長條狀,其長度可依窯場的場地及配套而定,一般都長達五十公尺以上。在隧道窯室內分為預熱帶、燒成帶、冷卻帶等三個階段,而隧道窯不僅設置了燒製的隧道主窯,並且也會在主窯的旁邊,設置一道平行於主窯的「副窯」,做為烘乾窯,而烘乾窯內的熱源,則來自於主窯內冷卻帶裡的剩餘熱氣,充分的利用剩餘價值,減少成本。烘乾窯能將磚坯預熱烘乾,使磚坯內豐富的含水率,經過烘乾窯之後,降到約百分之六的適當入窯含水率,以避免燒磚過程中磚坯迸裂提高生產效率,並且維持燒磚過程的品質穩定,所以隧道窯的製磚產能,已足足的比傳統的八卦窯提升了上百倍。
尤其到了民國八十年後的全自動隧道窯,更是一改以往半自動的操控,而完全改用靈敏度相當高的微動開關和紅外線感應器,配合自動操控的配電盤,做全系統的自動操作控制,使整座磚廠的生產動線,完全自動化。從黏土的供料到混合攪拌、擠壓製磚、自動機械手臂夾磚機的疊坯,進入烘乾窯、燒製窯,一直到燒製完成後的成品貯放區,這一段繁複而漫長的產製過程,都是由電子自動掌控,所以到了民國八十年後的製磚工程,已經不是當年日據時代的草創時期,所生產的數量可以比擬,亦可說是花壇磚窯業製造技術的最高成長時期。
然而隨著國際經濟景氣的變化,社會結構的改變,各行各業的激烈競爭,使得近年來的建築材料產生很大的變化,許多建築牆體,多改採鋼筋混凝土的灌漿方式,使得紅磚產業,在如此空前的不景氣衝擊下,使得原先非常蓬勃的窯業,產品的市場需求一落千丈,使得許多業者被迫停止生產,甚至於歇業改行。
回首花壇鄉橋仔頭地區的紅磚產業,近百年來,由當時蓽路藍縷的草創過程開始,窯業前輩們克勤克儉的艱辛經營,努力的研發改進;從當年的竹筒窯、目仔窯、圓窯、八卦窯到現在的全自動化隧道窯,一路上顛簸的走來,倍極辛苦。回想花壇磚窯的成長和演化,誠如一部感動人心的磚窯開發史,多麼值得我們去回顧、去省思。恆念前人的創業維艱、守成不易,更須我輩的珍惜,秉承前賢,對磚窯產業,不斷的創新和努力。
磚窯演進史 https://bit.ly/3SZmXn7


日本人在大正年間就已經將半自動輪窯方式的「霍夫曼窯」〈俗稱八卦窯〉由歐洲引入臺灣,而「臺灣煉瓦株式會社」也在當時就引進霍夫曼窯到花壇地區設置。根據當地的耆老回憶指出當時的日本人並沒有把這種較為進步的燒窯技術轉移給當時的臺灣業者,所以橋仔頭地區的窯業積極的自尋改進,由竹管仔窯改為目仔窯(俗稱階梯窯或登窯)這種半循環式的燒製過程,比起竹管窯的整窯式燒製作業過程已大大的提升產量,所以目仔窯在橋頭村維持了很長一段時間,廣為業界普遍使用,但因目仔窯這種一目一目(一室一室)隔絕而成的窯壁,吸熱面積太大,所以耗費燃料也相對的增加,磚窯業者漸漸發覺如果能夠不要有那麼多的隔絕窯壁又能連續循環燒窯作業,那才能符合燒窯磚的經濟效益,於是業者從外地引進較新式的文化窯(俗稱圓窯)。圓窯不像目仔窯必須築在山坡上,而是建在平地上,其窯室做360度圓形的環燒,這時已經非常接近霍夫曼式窯(八卦窯)的造型和功能。
因為有了圓窯的使用經驗之後不久橋仔村製磚業者再度的投下高額的成本改建八卦窯(也就是日本人由歐洲引進的「霍夫曼式窯」)。因此臺灣人自建的八卦窯在橋頭村從民國53年(西元1964年)開始啟用,曾經使用了長達二十幾年的歷史。隨著臺灣經濟成長的快速,十大建設等國家巨大工程陸續開始,八卦窯產磚數量已無法滿足市場的大量需求,所以業者又再度的投資引進了新穎且生產快速的「隧道窯」,八卦窯慢慢的被淘汰了。
趙守彥(1960-) - 彰化縣 花壇八卦窯 數位島嶼 https://bit.ly/3yw7sJL
Bull’s trench kiln---- Hoffmann's Kiln and Bull's trench kiln - Civil Engineers PK




問題:請簡單介紹一下公牛溝窯的結構和工作原理?
答:一般為橢圓形連續窯,50~100m。地平面以下長1.5 -2.5 m,分為8-12段。
乾燥後的磚堆放在窯內,中間留有空間供熱氣循環,並形成燃料廊道,燃料廊道上間隔60-90厘米設有豎井提供燃料。磚堆成一段長約3.60米,一段有20-30千塊磚。
燒一段時,讓熱氣通過下一段,再從煙囪中逸出。燒完一段磚需要24小時左右,溫度變化800℃-1000℃。所以在窯內一段時正在卸料,下兩段留待冷卻,一段燒成,一段預熱,一段煙熏,後兩段裝車。但窯在慢速運轉困難季節。它的產量約為每天 30000 塊磚。
簡要說明布爾溝窯的結構和工作原理? - 土木工程師 https://bit.ly/3l8ilOS
Explain briefly the construction and working of bull’s Trench kiln? – Civil Engineer
Clamp 或 Pazawah、Bull 溝窯、霍夫曼窯的工作。 https://bit.ly/3mEVbjK
燒磚
磚塊在陽光下曬乾後,將在窯中燃燒,使它們更硬、更堅固、更緻密、吸水性更低,因此更耐用。磚塊在(i) Clamp 或 Pazawah中燒製;或(ii) 窯爐-(a) 間歇式,(b) 連續式。下面描述了它們中每一個的工作。
1. 夾子或 Pazawah。
基本工作保持不變,在印度不同地區使用的它有各種變化。以下是對印度北部常用的一種的描述:
準備一個向上傾斜 15° 的梯形地板
挖掘狀態,而較寬的一端略高於地面。挖掘中的邊和與之相對的邊是平行的,挖掘中的邊大約是寬邊的一半。
地上舖一層由草、牛糞和垃圾組成的燃料,約 75 厘米厚。其上四五層磚砌成邊,每塊磚四周都有小空間。第二層燃料,然後是另外四到五層磚塊,依此類推。燃料層的厚度向著頂部繼續減小。當大約三分之一的夾具已加載時,夾具在底部的下端發射。繼續加載。這樣做是為了在向上通風的空間仍然打開時點燃下部。
加載完成後,將整個夾具抹上泥漿,以檢查熱量損失。然後讓它自行燃燒,然後冷卻。木屑或煤粉也可以用作夾具中的燃料。
當夾具冷卻下來時,將其卸載,然後像以前一樣重新加載並重新燒製。因此,它清楚地給出了磚塊的間歇供應。初始成本以及燃料成本非常低。這種燒磚方法非常適合偏遠的鄉村地區,一次只能提供不超過 1,00,000 塊磚。由於在夾具被解僱後不需要監督,因此其操作也很經濟。很大一部分用夾子製成的磚質量很差。
每個夾具可燃燒 25,000 到 1,00,000 塊磚,大約需要三個月才能燃燒和冷卻。
2.公牛溝窯。
它是印度使用最廣泛的窯爐,可以持續供應磚塊。它是在地表以下挖掘的溝槽中製成的(圖 2.8)。
公牛溝窯
公牛溝窯
溝渠可以完全在地下,也可以部分開挖,部分用土堤築成。溝渠平面大致呈橢圓形或圓形,深約2米。在窯溝的不同區域,所有不同的操作即。磚的裝卸、冷卻、燒製、加熱同時進行。
根據圖 2.9,假設以下是音速階段的操作順序:
公牛溝窯順序操作
公牛溝窯順序操作
區域 1- 正在冷卻的燒磚。
區域 2- 燒磚。
3 區 - 裝載的曬乾磚被來自 2 區的熱空氣加熱。
區域 4- 正在裝載新鮮的曬乾磚塊。
區域 5- 正在卸載冷卻的磚塊。
整個工作安排是所有區域的作業同時完成。在此階段,操作週期移動一個階段。燒磚的冷卻不是在 I 區,而是在 2 區開始,磚的燃燒在 3 區而不是 2 區開始;在 4 區而不是 3 區加熱裝載的曬乾磚;在 5 區而不是 4 區裝載新曬乾的磚塊,在 1 區而不是在 5 區卸載冷卻的磚塊。
這種操作循環繼續下去,我們可以定期獲得磚塊供應。裝載時,曬乾的磚堆放在窯中,每塊磚周圍都留有空間。以大約一米的間隔設置垂直煙道孔,以向底部燃燒的火提供燃料。窯內裝料段長約3.5米,段間淨空15厘米,上有兩個引風煙囪。窯的一部分裝好後,用泥土和灰覆蓋,以防止熱量散失。在將燃料送入火中後,甚至煙道孔也會關閉。
新鮮空氣進入冷卻磚的區域。在冷卻磚塊時,空氣被加熱。正是這種熱空氣有助於燒磚。來自燃燒區的熱空氣通過下一個區域,對要燃燒的磚塊進行加熱。在加熱剛裝好的磚塊時,熱空氣從煙囪中逸出時會變冷。
燒製加熱的磚塊後,煙囪將轉移到下一個區域。隨著燃燒操作的進行,煙囪繼續移動。每個部分需要一天的時間來燃燒。
Bull's Trench窯的優點。
(i) 它提供連續的磚塊供應。
(ii) 它提供了高比例的一流磚塊。
(iii) 它節省了燃料成本,因為來自燃燒區的熱氣體在通過煙囪逸出之前加熱了接下來要燃燒的磚塊。
(iv) 節省乾燥空間,因為即使是生磚也可以裝入其中,在燃燒之前通過來自燃燒區的熱空氣進行乾燥。
Bull's Trench 窯的缺點。
(i) 它需要持續熟練的監督。
(ii) 初始成本高。
3. 霍夫曼窯。
這是一個連續的窯爐,有一個永久性的屋頂,因此即使在下雨時它也能運轉。它是圓形的,建在地上。它的中心有一個固定的煙囪,窯爐圍繞它分成 12 個環形室。每個室都有與外界相通的門和通向煙囪的煙道。門可以用填砂的干磚牆封閉。通過操作稱為風門的金屬板,可以根據需要關閉或打開煙道。
空氣通過門 1 和門 2 進入窯爐,如圖 2.10 所示。
在穿過第 1 至第 4 室中燒過的磚塊時,它會依次冷卻並加熱這些磚塊。該熱空氣隨後通過燃燒室 7 至 10,加熱待燒磚。室 10 末端的鐵百葉窗關閉,10 號煙道打開,在加熱室 7 至 10 中的磚塊時已經冷卻的熱空氣通過煙道從煙囪中逸出。正在裝載 11 號室中的磚塊,而正在卸載 12 號室中的磚塊。當室號 I l 已加載時,鐵閘板移動到室號 11 的末端,並且在關閉煙道 10 後打開煙道 11。因此,整個操作循環向前移動了一步,並且該過程繼續.
燃料通過為此目的設置的燃料孔供給。在這個窯中,燃料的使用非常經濟,同時獲得的優質磚的百分比高於任何其他窯。與 Bull 的溝窯一樣,生磚也可以裝入該窯中,從而節省了乾燥空間。它的初始建設成本很高。長 11 米、寬 4.5 米、高 2.75 米的窯爐每天可生產 25,000 塊磚。
霍夫曼窯的優點。
(i)窯的工作即使下雨也不會中斷。
(ii) 由於使用熱氣乾燥和加熱生磚,因此燃料消耗低。
(iii) 出窯一級磚的比例較高。
(iv) 生磚直接入窯,乾燥節省空間和時間。
霍夫曼窯的缺點。
(i) 初始成本非常高。
(ii) 需要高技能勞動力來操作它。
Clamp 或 Pazawah、Bull 溝窯、霍夫曼窯的工作。 https://bit.ly/3mEVbjK









布爾溝窯——布爾溝窯和霍夫曼窯的區別
布爾溝窯 - 布爾溝窯和霍夫曼窯的區別 https://bit.ly/41W3GqF
公牛溝窯
公牛溝窯的平面形狀通常為矩形、圓形或橢圓形。通過為給定的製磚能力挖掘所需寬度的溝槽,將這些建造在地面以下。在溝槽中建造了 12 個腔室,可以同時進行兩個循環的燒磚生產,以實現更大的生產。由於結構在地下,熱量在很大程度上得以保存,因此效率更高。當火開始時,它不斷地從一個房間傳播到另一個房間。預熱、燃燒、冷卻、卸料、裝料等操作同時進行。
公牛溝窯示意圖
這些 Bull 的溝窯的建造方式使其每天可以生產約 20,000 塊磚。這些窯爐無法在季風季節製造磚塊,因為它們沒有永久性屋頂。它有一個可移動的金屬煙囪,放置在磚塊上,並隨著燒製的進行而移動。
另請閱讀:夾燒和窯燒的區別
公牛溝窯示意圖
牛溝窯
布爾溝窯和霍夫曼窯的區別
公牛溝窯 霍夫曼窯
平面形狀多為矩形、圓形或橢圓形 平面形狀多為圓形
建在地下 建在地上
沒有永久屋頂 有一個永久的屋頂
季風季節不能使用 一年12個月都可以使用
分為12個腔室,整個過程同時進行 分為 12 個腔室,整個過程同時進行。
霍夫曼窯
在霍夫曼窯中,火通過呈圓形、橢圓形或長方形封閉迴路的拱形屋頂堆疊的磚塊連續向前移動並燃燒它們。煙囪或風扇提供引起火勢移動的氣流。1858 年,德國的弗里德里希·霍夫曼 (Friedrich Hoffman) 開發了這種窯爐並獲得了專利。在印度,它被引入馬拉巴爾沿海地區。
霍夫曼窯
第一個霍夫曼窯有一個圍繞中央煙囪建造的圓形電路,但後來隨著時間的推移進行了修改,現在主要使用橢圓形或矩形的霍夫曼窯。
另請閱讀:磚的干燥和燃燒
霍夫曼窯燒磚
在霍夫曼的窯爐中,火焰穿過覆蓋著拱形屋頂的堆疊磚塊。拱形屋頂保護窯免受雨淋。射擊運動是由煙囪提供的氣流引起的。在某些情況下,還使用風扇來增加通風。
霍夫曼窯燒磚
窯爐中央煙道通過地下管道與煙囪相連。在霍夫曼窯中,有三個不同的操作區,即供入燃料並進行燃燒的磚燒區、堆放生磚並被煙氣預熱的磚預熱區,以及磚冷卻區燒製磚被流入窯爐的冷空氣冷卻的區域。
冷卻區的後端保持開放以允許空氣進入。而為了將煙氣通過煙氣管道系統引導到煙囪,預熱區的前端是密封的。通過窯內壁上的開口,窯與中央煙道相連。
密封前的窯爐開口保持打開,以允許煙氣從窯爐進入中央煙道。窯頂設有用於燃料進料的進料孔。站在窯頂上的一名消防員從進料孔中加入固體燃料。
每隔15-20分鐘加一次油,加油時間為5-10分鐘。窯內火在24小時內行進約10m,燒製10000至20000塊磚。每天從磚冷卻區的後端卸下燒製磚,並在磚預熱區之前裝載同一批生磚。
另請閱讀:對磚塊的不同測試
修復了 Chimney Bull 的溝窯
它是Bull's Trench Kiln的改良版,效率更高,污染更少。Fixed Chimney Bulls 的溝窯是應用最廣泛的燒磚技術之一。它由一個連續移動的火窯組成,由於菸囪提供的通風,火在窯中始終燃燒並沿氣流方向前進。在窯的不同部分,磚同時加熱、燒製和冷卻。
修復了 Chimney Bull 的溝窯
它在旱季運行。整個窯爐的橫截面溫度不均勻,這可能導致側壁和頂角處的磚燒不足,從而導致產品質量差異。
公牛溝窯的優勢
Bull 溝窯的優點是:
由於該結構分為 12 個腔室,因此所有過程同時發生。
由於它位於地下,因此熱量會在結構中保留很長時間。
它生產連續供應的磚塊。
它生產高比例的一級磚。
節省了乾燥空間,因為甚至可以將生磚裝入其中,這些磚在被從煙囪進入的熱空氣燃燒之前被乾燥。
公牛溝窯的缺點
Bull 溝窯的缺點是:-
它沒有任何永久性屋頂,因此不能在季風季節使用。
初始成本高。
需要不斷熟練的監督。
布爾溝窯 - 布爾溝窯和霍夫曼窯的區別 https://bit.ly/41W3GqF






燒製陶瓷磚的使用可以追溯到三千多年前,磚仍然是世界上大多數國家首選的房屋建築材料。在許多國家,製磚業是最大的單一能源用戶,並且由於勞動密集型手工製磚工藝,還僱用了大量工人。適合製磚的粘土幾乎無處不在,製磚過程可以通過簡單的手工方法完成,也可以在高度自動化的工廠中完成,具體取決於當前的勞動力成本和市場需求。
燒製磚塊,也稱為烘烤,可以賦予它們強度,並將塑料粘土不可逆地變成一種永久性的堅硬材料,再也不能在水中熟化。最初,磚是在夾窯或鏟窯中燒製的。這些不是永久性結構,而只是一堆覆蓋著泥漿密封層的青磚,磚下面放著燃料。後來,永久窯被用來燒磚。兩種類型的窯都裝有生磚,將其加熱到所需溫度,然後再次冷卻,然後才能將磚從窯中取出。用於燒製的所有熱能在冷卻過程中都損失掉了,這種所謂的周期窯浪費了能源。
1857 年,FE Hoffmann 在德國發明了連續磚窯。第一個窯爐的煙囪周圍有一個圓形的拱形隧道。與週期窯相比,這減少了超過 50% 的燃料消耗。三十年後,英國工程師 W. Bull 設計了霍夫曼窯的無拱版本,現在稱為 Bull 的溝窯。它在巴基斯坦、印度、孟加拉國和緬甸廣泛使用,但在其他地方鮮為人知。它的最大優點是建造成本低,能耗相對較低。
從裝載端看到的公牛溝窯(孟加拉國)
布爾的溝窯
窯爐可製成圓形或橢圓形。它建在旱地上,挖了一條寬 6-9 米、深 2-2.5 米、長 100-150 米的溝渠。另一種方法是用磚砌築窯爐的側面,尤其是在排水有問題的地方。外牆留有縫隙,便於砌磚和拔磚時看清溝槽。
要燒製的生磚成排放置,兩到三塊磚寬,中間有孔,可以讓煤進料和足夠的空氣流過設置(圖 2)。在窯的寬度和一半以上製作了一層磚塊,以穩定設置。在磚的頂部,覆蓋著灰或磚灰的兩層磚密封了環境。將一大塊帆布、紙或金屬板垂直放置在磚塊設置上,以阻止空氣從煙囪的錯誤一側進入(圖 3)。溝渠一次包含 200 - 300,000 塊磚。
6-10 米高的煙囪,由金屬板製成,放置在磚砌結構的頂部。隨著射擊的進行,它們會四處移動,而且它們必須很輕,以便射擊人員可以攜帶它們。附在鋼製煙囪頂部的電線支撐著它們。對輕便的需求和更換煙囪的成本通常會導致煙囪的高度變得太低。這意味著排氣溫度必須更高以保持足夠的通風,並且煙囪放置在靠近燃燒區的位置。因此,可以再利用較少的廢氣熱量。小型圓形 Bull 溝窯僅使用一個煙囪,而較大的橢圓窯則需要兩個煙囪。
Bull 的溝窯中的燒製是連續的,白天和黑夜。一直裝青磚,一直抽成品磚。燃料節省是通過再利用部分在周期性窯爐中以其他方式損失的能量來實現的。如圖 4 所示,用於燃燒的空氣通過已經燃燒但仍很熱的磚被吸入。冷卻磚將熱量傳遞給助燃空氣,在進入燃燒區之前對其進行預熱。燃燒後,熱廢氣在前往煙囪的途中穿過尚未燒製的磚塊。這會預熱磚塊,因此將磚塊加熱到最高溫度所需的燃料更少。每 24 小時一次,煙囪向前移動 5 至 7 m。日產量為 15 - 25,000 塊磚。
Bull 溝窯的設計
所需的人力和燃料
通常情況下,燒製人員由六名男子組成,分為兩隊,輪流給窯爐添火。移動煙囪時,需要全部六個人。將煙囪向前移動的整個過程大約需要一個小時。
消防員通過磚塊頂部可拆卸的鑄鐵孔點燃火。理想情況下,每小時加註 3-4 次,但尤其是在夜間,工人往往會長時間加註大量燃料,從而導致燃料消耗增加。窯爐的燒製需要高超的技巧,可能需要數年時間才能掌握。燃料可以是任何可燃材料或它們的組合;煤、褐煤、泥炭、木柴、鋸屑、農業廢料,例如稻殼、品牌或咖啡殼。也可以使用天然氣或石油,但這種燃料通常太貴了。切割成碎片的舊輪胎更常用,但燃燒產生的氣體毒性很大,許多國家已禁止使用輪胎。
從窯中取出的燒製磚(巴基斯坦)
帆布防止空氣從錯誤的一端進入窯爐(巴基斯坦)
返回索引
煙囪
可移動煙囪有兩個主要缺點;
金屬板在 1.5 - 2 個月內被腐蝕吃掉,並且
在移動煙囪的過程中,溫度會下降。
這種溫度損失增加,油耗減少約 5 - 10%。在印度次大陸較乾燥的地區,現在廣泛使用中央煙囪固定的布爾式溝窯(圖5)。相對於可移動的煙囪,初始成本較高,但節省了更換金屬煙囪的成本和稍微好一點的燃油經濟性,很快就收回了初始投資。橢圓形窯爐中央建有大型中央煙道,廢氣通過此通道排入磚砌煙囪。在有電且供應穩定的地方,可以使用排氣扇代替煙囪。
帶有固定煙囪的 Bull 溝窯(巴基斯坦)
公牛溝窯的經濟性
建立和運營 Bull 溝窯的成本取決於當地的勞動力和燃料成本。此處給出的數字是在印度次大陸收集的數據的平均值,因此成本數字在其他地區可能不正確,包括其他燃料和勞動力成本,以及不同的文化和基礎設施。
Bull 溝窯的優點
與週期窯相比,燃料效率更高。
初始投資低。
大容量。
Bull 溝窯的缺點
窯爐連續燒製,每天必須裝入固定數量的磚塊。這就要求磚生產組織良好,生產不能輕易適應磚市場的波動。
射擊人員需要長期的經驗。
它的可移動煙囪的使用壽命很短。
可移動煙囪的排氣溫度很高,導致燃燒條件和燃油經濟性不佳。
Bull´s TrenchKiln https://bit.ly/3YAk11v


地溝窯
地溝窯分為地上窯和地下窯,主要分布於陝西西北部的永壽縣。該縣距西安85公里,地處關東平原該縣屬貧困縣,地溝窯始於明朝,因當地貧困,無錢蓋房所以在地下挖一個10m*10m*7m的坑,然後在這個坑的內壁四周開洞居住。類似北京的四合院。隨著人們的生活水平的提高,漸漸搬到地上。
中文名:地溝窯起始時間:明朝-基本介紹
目前常見的焙燒磚窯有:輪窯、隧道窯、吊絲窯、開口窯…等。其中:隧道窯現改進有旋轉窯隧道窯、移動隧道窯﹔開口窯分﹕地上開口窯和地下開口窯,地下開口窯又名地溝窯。通俗地說,地溝窯設在地平面以下,有一個連續的長方形和橢圓型窯道,其直段部分為直窯段,轉彎部分為彎窯段但分長方形和橢圓型,窯道內外沒有橫隔牆.與輪窯的區別:不設窯門,不設窯頂,外觀像地下溝渠,故名:地溝窯。窯道內斷面尺寸一般為內高2-2.8m以下,內寬2~10m或以上,如圖所示。
沿整個窯道長度方向的兩條平行窯道之間設有總煙道,每個窯室側牆
下部設有排煙孔(俗稱“哈風”),這種排煙孔設定於外側牆處,稱之為“外哈風”,設轉置於內牆處,稱之為“內哈風’:有的地溝窯設了兩種哈風兼有.有的地溝窯就只設外哈風。在內、外哈風均設的地溝窯中,由於結構上的特點和窯道內橫向里外溫度存在差異的原因,地溝窯在彎窯段的窯室就僅設外哈風。 總煙道和排煙孔之間由地下支煙道相連通,支煙道與總煙道連線處設有鑄鐵風閘。總煙道上設排煙風機,另外也有用地下煙道將總煙道延伸至窯外一側,再通向排煙風機。 上述排煙孔、支煙道、總煙道和排煙風機)設施構成整個排煙系統。在地溝窯焙燒過程中,燃料燃燒後的煙氣即經排煙孔、支煙道流入總煙道,再經排煙風機排空。
平面圖地溝窯橫截圖工作系統
地溝窯外牆是和地面連在一起的,靠窯室一側一般用磚砌或耐火保溫材料築成,內窯牆厚75~150cm,地溝窯頂由窯拱、填土層和面層組成,總厚度約為0.5-1m,其中窯拱磚厚為0.25-0.37m,上面即用乾粘土充填密實,面層用磚乾法鋪砌,窯拱和窯道內牆一般為普通建築磚,也有採用部分耐火磚砌築以提高砌體耐火等級和質量,延長窯的使用壽命,地溝窯內產品焙燒是通過燃料在其磚垛內部燃燒方式實現的,故在窯頂設定投煤孔(俗稱“火眼”),燃料自投煤孔進入窯內,投煤孔沿窯道長度方向布置若干排,排距為1m,每排一般為3~8個,其橫向間距為0.8~1m左右,投煤孔內淨空尺寸一般為15×15cm。 有些地溝窯還設定有熱利用系統,用以抽取熱空氣和煙氣,供給人工乾燥室或烘乾段烘乾磚坯。熱利用系統包括抽取直接餘熱、間接換熱和高溫煙氣三部分,直接餘熱是窯外空氣進入 冷卻帶被加熱後變成的熱氣體,它直接從冷卻帶經投煤孔抽出;間接換熱是在窯拱的外表面 鋪設換熱管道,通過管道內空氣與窯頂內部蓄熱之間的交換,將冷空氣加熱後抽出;高溫煙氣是直接抽取焙燒帶前部的低濕含量的高溫煙氣。
工作原理
正常焙燒的地溝窯,可分成預熱帶、燒成帶,冷卻帶。磚碼入地溝窯窯後不移動,而各帶隨著連續不斷地裝坯(碼窯),焙燒,出坯(出窯)作業,則沿著環形窯道移動,如圖 所示,燃料自焙燒帶的投煤孔送入窯內後,在坯垛或空隙間進行燃燒,進而產生熱量加熱坯體。 燃料燃燒所需空氣來自冷卻帶,即冷空氣由冷卻帶已打開的窯門進入,向焙燒帶方向流動, 由於對流傳熱的作用,冷空氣被加熱成熱空氣,這部分熱空氣,除部分從冷卻帶的投煤孔溢 出或當窯內設熱利用系統時,有一部分披抽送至於燥室外.其餘部分則進入焙燒帶供燃料燃燒用。燃料燃燒所生成的煙氣繼續向預熱帶方向移動,通過對流、傳導等熱交換,使預熱帶的坯體得到預熱而升溫,從而煙氣溫度則相應逐漸降低,最後經排煙系統排出窯外。為了能使預熱帶維持負壓,使煙氣能向前移動,在預熱帶一般開啟多個排煙風閘,以調節控制煙氣流量。裝坯時,每段窯室用“紙檔”把窯道整個斷面封嚴,當火焰向前移動一段窯室距離時,即應提起預熱帶始端紙擋前一段窯室的風閘,將其紙檔燒掉,同時將靠近焙燒帶的一個風閘關閉,從而各帶均前進一段窯室,配合裝坯、出坯的作業,使地溝窯焙燒即可連續不斷地循環進行。地溝窯按每個部火而言,各帶分布情況大致為:預熱帶20-50m;焙燒帶8-20m;冷卻帶20—30m,裝出坯窯5-20m。在正常生產中,雖然火焰不斷前移(火行速度一般為一晝夜20-70m),使各帶的位置也隨著相應前移,但各帶所占窯室數基本無大變化,處於相對穩定狀態。因此,在實際生產過程中,要求生產管理和操作保證各帶均衡,才能使輪窯得以始終正常運行,產品的產量和質量也才能有所保證。
地溝窯:基本介紹,工作系統,工作原理,_中文百科全書 https://bit.ly/3Lz7KHV

敞開式輪窯(Opening Hoffman)就是一例。
窯敝開式輪窯是在原有傳統輪窯的基礎上,主要做了如下改進:
1、改環形窯道變成兩條平行的直形窯道; 、
2、 直形窯道兩端和中部加設升降式窯門;
3、在窯道靠近兩端窯門處,內牆各設“過火洞”,使兩條平行的窯道連通,以保持仍能連續焙燒;
4、為適應機械化裝卸製品,有利於窯內傳熱,採用吊平頂結構;
5、設定餘熱利用系統,將磚坯冷卻熱抽出,作為部分乾燥熱源;
6、投煤孔橫向排列採用不等距方式,以利窯內坯垛焙燒溫度均勻;
7、窯內製品的機械化裝卸,需配備專用叉車進行。專用叉車由適應不同規格製品的特殊叉具和普通叉車配套組成。
輪窯:簡介,輪窯結構,工作系統,工作原理,輪窯的改進,特點,優點,缺點,_中文百科全書 https://bit.ly/3l7LUAh
台灣連環窯的砌築工法和生產技術已經失傳-湖口磚瓦窯業:: https://bit.ly/3iqoWTF
3/11相簿分享 https://photos.app.goo.gl/DvkYysHsRFXc8Pto7
霍夫曼窯(八卦窯)臺灣珍貴古窯又現蹤--新竹湖口新發現「霍夫曼窯」-盧泰康/窯旁高聳煙囪,保存尚稱完整,「窯身前後兩側的窯爐外壁與窯室」、「投煤口」、「中央煙道」/指定為珍貴的文化資產「歷史建築」,甚至是「國定古蹟」 :: https://bit.ly/411ajrr



照片左側應該是日本時代臺北帝國大學所使用的磚材,主要來源是後宮信太郎創辦的臺灣煉瓦株式會社所產的TR磚,因為磚面上會印有TR字樣,代表Taiwan Renga,品質是屬於當時的一級磚。
右邊則為戰後台灣一般常見的紅磚或面磚,多半是地方一些小型粗窯燒製,品質自然難以和日本時期用於國家重要建設的大型磚業量產的高級磚相比。
雖然戰後國府財政破敗,修繕用料品質不佳是可以理解的事,但是這張照片也完整呈現了戰前日本的國力強盛以及在建築用料的嚴謹和對建築工藝的重視。
https://www.threads.com/@adventurebear_jp/post/DNrLU0MZr89?xmt=AQF0ioC4NEKLpMxhiDKtfMJFDUdOqytjVpFarEU8nPg7lg












江別市陶瓷藝術中心 - Google 地圖 江別市陶瓷器藝術中心概述與文章一覽 (北海道江別市西野幌114-5)| Japan Travel by NAVITIME - 指南、交通搜尋及行程規劃
江別市陶瓷藝術中心 | 觀光設施一覽 | 觀光景點 | 歡迎光臨札幌




江別市陶瓷藝術中心 - Google 地圖 讓我們一起來探索磚和陶瓷的魅力吧!磚城江別市的“陶瓷藝術中心”|Domingo
