








設計師返鄉蓋房 屏東四代7口同住時髦三合院 設計師返鄉蓋房 屏東四代7口同住時髦三合院 | 好房網雜誌 | 好房網News | 關心您住居的房地產新聞
設計師返鄉蓋房 屏東四代7口同住時髦三合院 | 好房網雜誌 | 好房網News | 關心您住居的房地產新聞 https://bit.ly/2Z0Cx79
地點/屏東市
坪數/建地120坪、室內64坪
格局/客廳、廚房、餐廳、臥房4間、遊戲室、衛浴6間、教室2間
成員/阿公、父母、夫妻、兒子女兒
施工/24個月
居住/1年
室內設計及裝修/好室設計總監陳鴻文及父親
「有了小孩之後,更覺得全家人應該住在一起。」本案鄰近屏東火車站,是好室設計總監陳鴻文4代同住的自宅。他說起最初購地的緣由:「年長者不適合爬樓梯,小孩子愛跑跳、活動力高,有庭院最好,所以一開始就往舊式的老房子找起。」因為地緣關係,他的父親在阿公家附近,找到這戶屋齡一甲子、荒廢十多年的三合院,保留著完整的「大厝護龍」傳統格局。
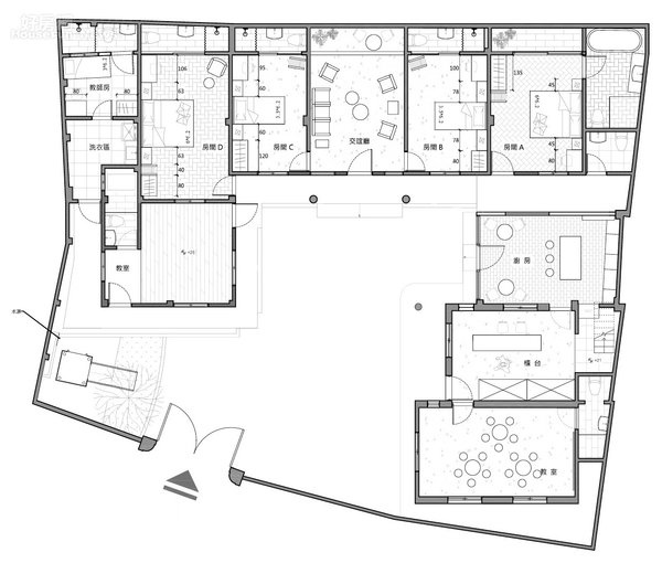
平面圖
所謂「大厝」指的是中間的主屋,「護龍」則是左邊與右邊的房舍,這戶三合院的左右護龍不對稱,左邊房舍較短且坪數小、右邊房舍則一間一間向外延伸。陳鴻文表示:「火車站附近的土地開發時間早,聽鄰居說,以前的屋主是個做生意的人家,蓋屋並非一次到位,而是存了錢後陸續加蓋,因此右護龍愈來愈長。」從老建築看到前人的生活軌跡,讓向來喜愛文化歷史的陳鴻文,益發堅定了想要修復大厝護龍的想法。
老屋新建容易修復難 父子攜手一步步實踐
購屋之後,父子倆聯手合作,陳鴻文負責設計,結合父親的裝修專業,沒想到尚在規畫的階段,竟連續迎來兩個颱風,狂風暴雨肆虐屏東,使得3合院的廚房屋頂整個坍塌。
這讓陳鴻文的父親頗為猶豫,屋況頹圮彷彿廢墟,傾向蓋新厝會比較單純;陳鴻文卻堅持:「如果拆除重建,一定會忍不住想要把建地蓋滿,然後又往上加蓋,最後就失去現在那麼大的院子。」他試圖說服父親,並找來許多案例跟父親討論,好不容易堅持住修復三合院的計畫。
整片坍塌的瓦片屋頂不容易復原,傳統的斜屋頂亦缺乏放置空調主機和水塔的空間,陳鴻文靈機一動,在廚房上方灌漿,改造為露台,將所有機具管線統統集中在此處,不但方便維修管理,更發現露台上能眺望周邊環境:附近兼有三合院、透天厝與鐵皮屋,從這些建築形式,能推演出時代社會的變遷,別有一番意趣。
蓋自己的家
▲這戶三合院的左右護龍不對襯,反映出早期建造院落時,屋主存夠資金才陸續向外加蓋的庶民作風。
蓋自己的家
▲斜屋頂以黃檜修復,老件中藥櫃搭配藤編燈具,為空間帶出自然樸質的台灣味。
順應老宅格局修舊如舊 重整修復著重接引天光
整修老屋最常遇到的問題是漏水潮濕、處理與鄰舍相接的介面,以及如何找到適合的建材。前2個問題都可用技術克服,但舊式的紅色屋瓦難尋,使用年限也短,因此,設計師除了將廚房改為平頂露台,其餘斜屋頂以傳統工法,改換陶瓷製的鐵灰啞光日本瓦,搭配淺灰外牆,外觀低調且流露禪風。
陳鴻文說:「其實我做的不多,著重在修復與採光。」順應原有格局,正中間的主屋規畫為客廳,保留新舊磚材,對比3個年代的紅磚色澤,天地壁用檜木、水泥和磨石子,帶出樸質況味。
客廳左右2側設置共4個房間,並打開連結後巷的牆壁,爭取每個房間都有一套專屬的衛浴,家人彼此相鄰卻不會互相干擾;而衛浴天窗以細竹遮陽,彷彿篩過的日光輕柔灑落。
蓋自己的家
▲保留主屋的舊紅磚以及從縫隙中長出的鐵線蕨,再向上堆疊不同年份的紅磚,牆面呈現出歷史之美。
蓋自己的家
蓋自己的家
▲主屋兩側設置4間套房,家人彼此相鄰居住,卻不會互相干擾;衛浴空間運用細竹遮陽,讓炙熱的陽光變得溫柔宜人。
保留灶台形式加設中島 餐廚區開放敞亮走出封閉
原屋舊建材若能夠再利用的,一率不隨意拋棄,完整的鐵窗用於客廳,破損的鐵窗重新裁切上漆,用於2樓的露台欄杆,將老窗花的古典圖樣保存下來。所有過道與開窗,都保持原有的方、圓、菱形造型,並嵌入復古花玻璃;洗石子地與壁面的老花磚,都經過傳統工法打蠟拋磨,就連地板高低差、門窗尺寸、門檻高度,一概追求盡可能還原。
陳鴻文分享:「因為水電管線必須重牽,不破壞原屋地板是非常困難的。」因此他的父親煞費苦心,最後決定調整工序,集中所有管線,變動最少的地板,來達成全室管線的更新。此外,特地引進復古花磚和義大利窯變地磚,以花紋不連續的拼貼手法補足室內地坪,做出東西薈萃的氛圍。
傳統的房舍結構,灶房往往遠離主屋並幽暗封閉,陳鴻文打開右護龍最裡間的廚房,換成玻璃門窗隔間,讓光線穿透、空氣流通,也能看到院子和主屋裡的家人活動。此外,保留原本的竈(灶)台形式,加設現代中島,並結合餐廳功能,令餐廚空間彷彿陽光屋般明亮寬敞。
蓋自己的家
▲曾經坍塌的廚房屋頂,灌漿改造成平頂露台;並以大面積的玻璃隔間,新增中島並納入餐廳功能。
老件家具台歐混搭 左右護龍打造親子空間
家具家飾是陳鴻文多年的蒐藏,混搭40至80年代來自台灣與歐洲的設計,有木質圓凳、老中藥櫃、藤編捲簾、印度燈具、德國顯微鏡等等,在大厝護龍裡找到新定位。
左護龍的最外間,打造為一雙兒女的遊戲室,若遇夏熱冬寒,可以在室內打通鋪玩耍;右護龍的最外間規畫成共學教室,目前會在周末請來幼教老師,帶領小朋友們音樂律動,為老社區注入鮮活朝氣!
院子裡,陳鴻文的父親為孫子孫女親手植樹,並打造樹屋溜滑梯,傍晚時分,陳鴻文的阿公來訪,全家人會從客廳挪到院子裡泡茶聊天、陪孩子們遊戲。陳鴻文特別期待,溫暖的老空間凝聚家人情感,兒女保有四代同堂的美好記憶,未來能夠代代傳承。
蓋自己的家
▲左護龍的最外間,規畫為兒子女兒的遊戲室,若遇天氣太冷或太熱,室內也有足夠的空間,能讓他們打地鋪玩遊戲。
蓋自己的家
▲陳鴻文的父親為孫子孫女親手植樹,並打造樹屋溜滑梯。
蓋自己的家
▲從廚房上方的平頂露台遠眺,能看到附近有三合院、鐵皮屋和透天厝,從不同的建築型態,能看出時代變遷的軌跡。
(撰文:呂依緻 採訪協力、圖片提供:好室設計)設計師返鄉蓋房 屏東四代7口同住時髦三合院 | 好房網雜誌 | 好房網News | 關心您住居的房地產新聞 https://bit.ly/2Z0Cx79
留言列表